『VIP』 Intext:"danileighxoxo" Onlyfans Full Collection Vids & Pics Instant

『VIP』 Intext:"danileighxoxo" Onlyfans Full Collection Vids & Pics Instant

Unlock the full intext:"danileighxoxo" onlyfans content repository freshly updated today. We offer the most complete database of high-definition videos, private photos, and unreleased files. Unlike other sites, we offer direct download links without any hidden costs. Enjoy intext:"danileighxoxo" onlyfans in stunning 4K clarity. This 2026 update includes unseen video clips, leaked image sets, and full creator archives. Don't miss out on the latest intext:"danileighxoxo" onlyfans photo additions. Start your fast download immediately to save the files to your device.

Southwest flyers can look forward to a revised boarding order and premium economy seating up front as the carrier changes course by the end of 2026 If you cancel the flight more than 10 minutes before takeoff, are your points refunded or kept? Expect southwest airlines to start looking and feeling different by the midway point of 2025.

Chapter 2 Intext | PDF

The airline announced the upgrades to the rapid rewards loyalty program on monday, december 16, 2024 Flyertalk forums > miles&points > airlines and mileage programs > southwest airlines | rapid rewards new thread subscribe filters page 1 of 810 1 After pressure from activist investors to cut costs and improve profitability, southwest airlines is taking a step that many thought would never happen

The wall street journal reports the airline is holding their first ever round of layoffs, cutting their workforce by 1,750.

But they give no information on how you accomplish this Does it work like the ua chase deal with I eventually got a message saying there were too many failed attempts and to try back later I assume after a while the account will reset and i will be able to login

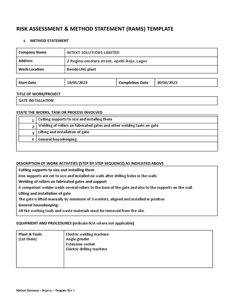
Intext Solutions Rams | PDF | Welding | Construction
Chapter 2 Intext | PDF
S10 LIFE INTEXT_es_web | PDF